価格のはなし

建物の金額はどのくらい?

家づくりを検討する方の最大の関心事は「おおよそいくらぐらいで家が建てられるか?」ではないでしょうか。

多くの方は他社との比較をする上で「坪単価」を利用します。
しかし、この「坪単価」にはきちんと決められた基準があるわけではないと知っていましたか?

たとえば室内に収納がほとんどない簡素な家を建てる会社と、家具の購入が不要になるくらい収納や棚類を装備して引き渡す会社とでは比較のしようがありません。

さらに、目に見えない性能面での違いもあるかも知れません。
ですから坪単価だけで比較することにあまり意味はないのです。

比較をするのであれば、どこまで造りこんだ家なのか、どんな性能で、どんな素材で建てられているのかを見極めた上での判断が重要です。

弊社では見積りを無料で行っています。見積もりに関する疑問点の相談なども承っておりますので、費用感に不安をお持ちの方は一度ご相談ください。

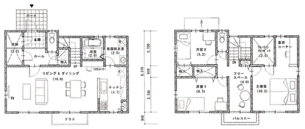
水野建築の建築費実例

工 法木造在来軸組み工法
坪 数31.6坪
耐震等級等級3(許容応力度計算)
U A 値0.34(W/m²・K)
C 値0.2~0.5 cm/m2 (cm²/m²)
認 定長期優良住宅対応
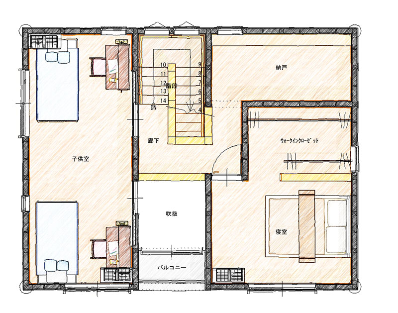
一階間取り図
二階間取り図
本体価格2,710万円
付帯工事費325万円
諸費用110万円

合計 3,145万円

上記価格には、太陽光5kw/床下エアコン/リビングエアコンが含まれます

  • 付帯工事費:仮設工事、照明器具工事などが含まれます
  • 諸費用:建築確認申請、登記費用などが含まれます
  • 外構工事、地盤過料工事などは含まれません
  • 価格は税別です

詳細はお問合せください

月々の返済例

頭金145万円
借入額3,000万円
金利1.35%
10年固定金利
返済期間35

月々の返済額 89,666

水野建築の電気代実例

電気料金平均8,878
付売電料金平均9,280

合計 -402

水野建築の住まいは、
断熱性能を高くすることで電気代を抑え、
住宅ローン+光熱費
月々の支払いをお得にします


コストダウンのための努力

弊社では他社と違い、モデルハウス・営業マンなどを採用していないことから、経費を大幅にカットしています。

そのため、注文住宅をお値打ちに御提供する事が可能となっております。

資金計画の相談は水野建築へ

水野建築では、お客様のライフプランや資金計画の際に大切になるポイントを考慮した上で、一人一人にあったアドバイスをさせて頂きます。
住宅ローンアドバイザーでもある代表の水野が直接アドバイスさせて頂き、お客様の家づくりを資金計画の面からもサポートいたします。

家を建てたいと思ったら、まずは一度ご相談ください。資金計画を考えてみることで、
きっとご家族の幸せな未来が具体的に感じられると思います。